Zoek binnen het forum
Vraag: Ophogen badkamer vloer, hoe staat het met het extra gewicht?
Naam: R.S. Ploeger, van nvt (datum: 17-10-2020 20:01)
Ik ben sindskort bezig met het renoveren van onze badkamer.
Ik wel nu de vloer ophogen om zo leiding werk en vloerverwarming aan te brengen onder de nieuwe vloer.
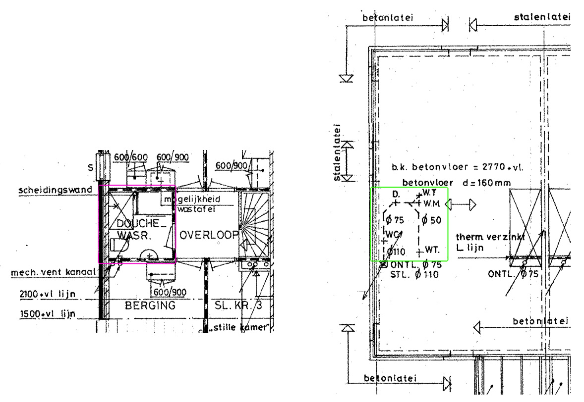
De ruimte is 2.1 m bij 2.05 m. En ik wil de vloer 7 a 8 cm ophogen met cement. Ik vraag me alleen af of de oude vloer de nieuwe ophoging kan dragen.
Ons huis komt uit 1980 en heeft een betonnen vloer.
De betonnen vloer is 160 mm dik, volgens de bouwtekeningen.
Bijlage: douche_tekening2.jpg Reageer
Naam: R.S. Ploeger, van nvt (datum: 17-10-2020 20:01)
Ik ben sindskort bezig met het renoveren van onze badkamer.
Ik wel nu de vloer ophogen om zo leiding werk en vloerverwarming aan te brengen onder de nieuwe vloer.
De ruimte is 2.1 m bij 2.05 m. En ik wil de vloer 7 a 8 cm ophogen met cement. Ik vraag me alleen af of de oude vloer de nieuwe ophoging kan dragen.
Ons huis komt uit 1980 en heeft een betonnen vloer.
De betonnen vloer is 160 mm dik, volgens de bouwtekeningen.
Bijlage: douche_tekening2.jpg Reageer
Re: Ophogen badkamer vloer, hoe staat het met het extra gewicht
Naam: A (datum: 18-10-2020 17:41)
8 cm vind ik net te veel om te zeggen dat het geen probleem zal zijn.
Wellicht kun je er wat eps platen onder doen om wat gewicht te besparen. Of het leidingwerk een stukje infraisen in de bestaande dekvloer als dat mogelijk is. (niet in evt. druklaag) Met dat laatste krijg je ook een geen hoog opstapje.
Naam: A (datum: 18-10-2020 17:41)
8 cm vind ik net te veel om te zeggen dat het geen probleem zal zijn.
Wellicht kun je er wat eps platen onder doen om wat gewicht te besparen. Of het leidingwerk een stukje infraisen in de bestaande dekvloer als dat mogelijk is. (niet in evt. druklaag) Met dat laatste krijg je ook een geen hoog opstapje.
Re: Ophogen badkamer vloer, hoe staat het met het extra gewicht
Naam: Jack , van SenS (datum: 19-10-2020 09:10)
Die bestaande betonvloer zal ook voorzien zijn van een zandcementdekvloer (onder de best. tegels o.i.d.) Die zal 3 tot 5 cm dik zijn. Als je die weghaalt en je maakt er een nieuwe dekvloer van 7cm in (al dan niet op een laag EPS voor extra hoogte) dan voeg je uiteindelijk niet zoveel extra gewicht toe. Deze oplossing beperkt ook de opstap tpv de deur van de badkamer.
Reageer
Naam: Jack , van SenS (datum: 19-10-2020 09:10)
Die bestaande betonvloer zal ook voorzien zijn van een zandcementdekvloer (onder de best. tegels o.i.d.) Die zal 3 tot 5 cm dik zijn. Als je die weghaalt en je maakt er een nieuwe dekvloer van 7cm in (al dan niet op een laag EPS voor extra hoogte) dan voeg je uiteindelijk niet zoveel extra gewicht toe. Deze oplossing beperkt ook de opstap tpv de deur van de badkamer.




![[ S&W Consultancy ]](topics//logo.gif)
![[ Emma Interieuradvies]](topics/index/emma.png)