Zoek binnen het forum
Vraag: Dakterras - 2 verschillende hoogtes
Naam: PH, van - (datum: 18-11-2017 18:22)
Beste,
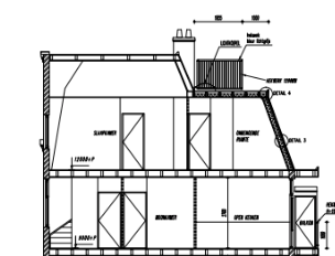
Ons dak bestaat uit 2 verschillende hoogtes. Mijn vraag is of hier een dakterras op mag die begint om het lagere gedeelte, en vervolgens met een trap (op het terras dus) naar een iets hoger gedeelte gaat om daar het vervolg van het dakterras te hebben.
In de tekening (bijlage) vind je het dakterras op het lagere gedeelte, en ik wil deze graag verlengen naar het hogere gedeelte.
Dank!
Groeten, PH
Bijlage: Screen Shot 2017-11-18 at 18.19.59.JPG Reageer
Naam: PH, van - (datum: 18-11-2017 18:22)
Beste,
Ons dak bestaat uit 2 verschillende hoogtes. Mijn vraag is of hier een dakterras op mag die begint om het lagere gedeelte, en vervolgens met een trap (op het terras dus) naar een iets hoger gedeelte gaat om daar het vervolg van het dakterras te hebben.
In de tekening (bijlage) vind je het dakterras op het lagere gedeelte, en ik wil deze graag verlengen naar het hogere gedeelte.
Dank!
Groeten, PH
Bijlage: Screen Shot 2017-11-18 at 18.19.59.JPG Reageer
Re: Dakterras - 2 verschillende hoogtes
Naam: pino (datum: 20-11-2017 09:13)
zie bestemmingsplan of het mag.
zo ja vergunning aanvragen
Naam: pino (datum: 20-11-2017 09:13)
zie bestemmingsplan of het mag.
zo ja vergunning aanvragen
Re: Dakterras - 2 verschillende hoogtes
Naam: Leon (datum: 20-11-2017 10:34)
Bestemmingsplantechnisch is dit vaak lastig (zo niet: verboden). Mocht het wel toegestaan zijn dan kun je inderdaad een vergunning aanvragen, maar een hekel punt is dan wel of de bestaande balklaag zwaar genoeg is uitgevoerd om als beloopbare/bruikbare vloer door te gaan. Ik ben bang van niet eerlijk gezegd, en dan wordt het dus wel een wat grotere ingreep dan alleen een trap en hekje plaatsen, dan zul je de constructie moeten versterken.
Naam: Leon (datum: 20-11-2017 10:34)
Bestemmingsplantechnisch is dit vaak lastig (zo niet: verboden). Mocht het wel toegestaan zijn dan kun je inderdaad een vergunning aanvragen, maar een hekel punt is dan wel of de bestaande balklaag zwaar genoeg is uitgevoerd om als beloopbare/bruikbare vloer door te gaan. Ik ben bang van niet eerlijk gezegd, en dan wordt het dus wel een wat grotere ingreep dan alleen een trap en hekje plaatsen, dan zul je de constructie moeten versterken.
Re: Dakterras - 2 verschillende hoogtes
Naam: PH (datum: 20-11-2017 14:56)
OK dank voor jullie feedback! Ik zal het checken qua constructie etc.
Reageer
Naam: PH (datum: 20-11-2017 14:56)
OK dank voor jullie feedback! Ik zal het checken qua constructie etc.




![[ S&W Consultancy ]](topics//logo.gif)
![[ Emma Interieuradvies]](topics/index/emma.png)