Zoek binnen het forum
Vraag: enkele vluchtroute
Naam: Marc Wichards, van XYZ architectuurstudio (datum: 13-10-2014 15:26)
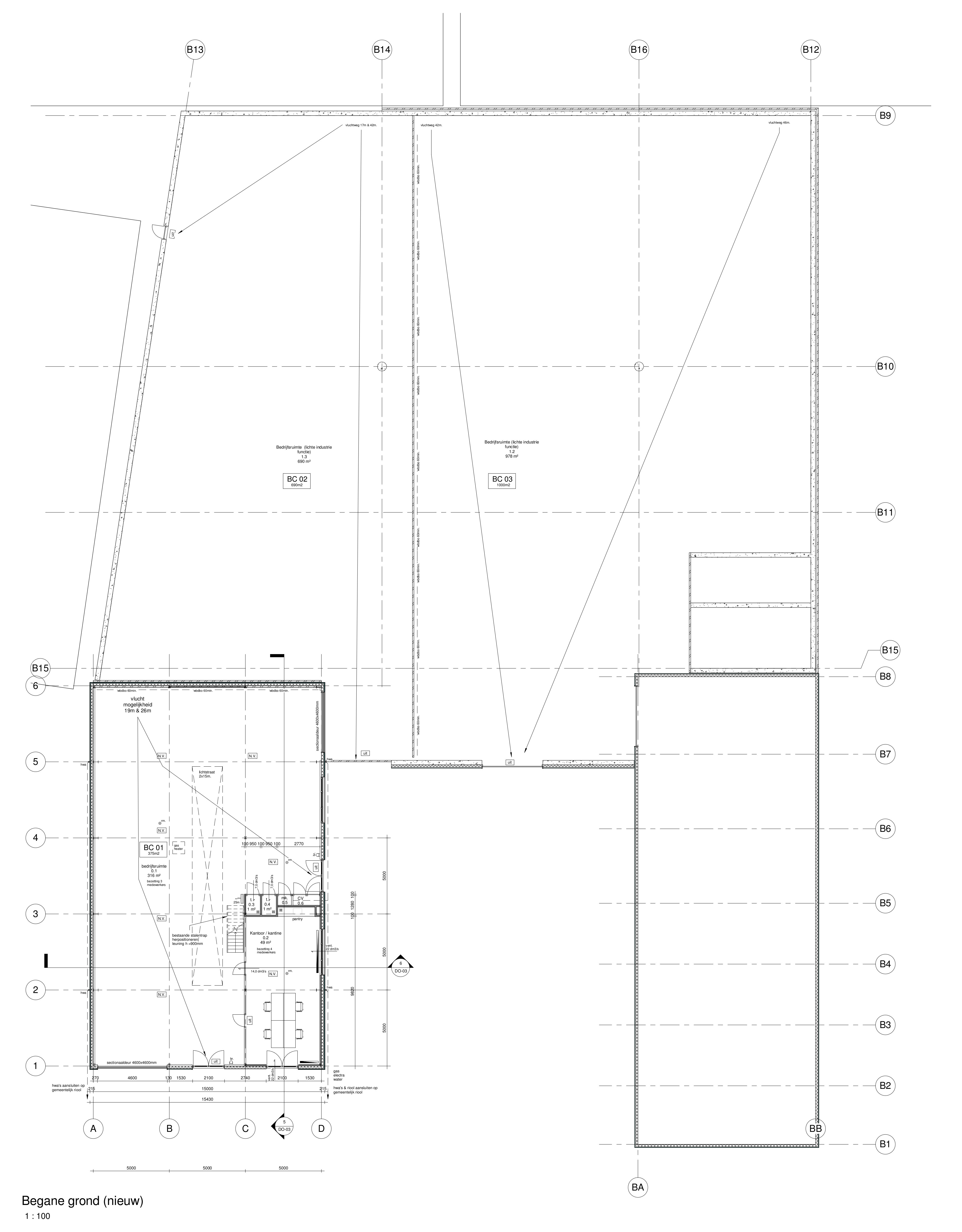
In een bestaande situatie wordt een bedrijfsterrein nu deels overkapt, verbouwd tot 2x een bedrijfshal van 700 & 1000m2.
Doordat het terrein aan 3 kanten ombouwt is door bedrijfshallen ontstaat er een situatie dat er slecht naar 1 gevel gevlucht kan worden vanuit de bedrijfshal. Daarbij gaat het om een loopafstand van max. 46m.
In de bedrijfshal is een lage bezetting van minder dan 1 persoon per 30m2, dus volgens BB 2012 2.102 lid 7 mag de loopafstand max. 60m zijn. Hieraan kunnen we voldoen.
Maar hoe zit het met de 2e vluchtroute, deze is er niet want er kan maar enkelzijdig gevlucht worden.
Welke consequenties heeft dit voor dit bouwplan?
Kan ik middels een zwaardere brandveiligheids installatie wel aan de regelgeving voldaan worden.
Zie bijgevoegde plattegrond, het gaat metname om BC 03
Graag uw input.
Alvast bedankt
Marc Wichards
Bijlage: bedrijfshal.jpg Reageer
Naam: Marc Wichards, van XYZ architectuurstudio (datum: 13-10-2014 15:26)
In een bestaande situatie wordt een bedrijfsterrein nu deels overkapt, verbouwd tot 2x een bedrijfshal van 700 & 1000m2.
Doordat het terrein aan 3 kanten ombouwt is door bedrijfshallen ontstaat er een situatie dat er slecht naar 1 gevel gevlucht kan worden vanuit de bedrijfshal. Daarbij gaat het om een loopafstand van max. 46m.
In de bedrijfshal is een lage bezetting van minder dan 1 persoon per 30m2, dus volgens BB 2012 2.102 lid 7 mag de loopafstand max. 60m zijn. Hieraan kunnen we voldoen.
Maar hoe zit het met de 2e vluchtroute, deze is er niet want er kan maar enkelzijdig gevlucht worden.
Welke consequenties heeft dit voor dit bouwplan?
Kan ik middels een zwaardere brandveiligheids installatie wel aan de regelgeving voldaan worden.
Zie bijgevoegde plattegrond, het gaat metname om BC 03
Graag uw input.
Alvast bedankt
Marc Wichards
Bijlage: bedrijfshal.jpg Reageer
Re: enkele vluchtroute
Naam: Joost (datum: 13-10-2014 17:49)
als het pand 1 bouwlaag (de begane grond) heeft, en je bent vanuit alle plekken in het pand binnen de door het bouwbesluit gestelde afstand buiten, dan voldoe je aan het bouwbesluit. Geen probleem dat alle uitgang(en) dan in dezelfde gevel liggen. Afhankelijk van een aantal andere regels moeten er misschien wel minimaal 2 uitgangen op minstens 5 meter uit elkaar zijn.
Naam: Joost (datum: 13-10-2014 17:49)
als het pand 1 bouwlaag (de begane grond) heeft, en je bent vanuit alle plekken in het pand binnen de door het bouwbesluit gestelde afstand buiten, dan voldoe je aan het bouwbesluit. Geen probleem dat alle uitgang(en) dan in dezelfde gevel liggen. Afhankelijk van een aantal andere regels moeten er misschien wel minimaal 2 uitgangen op minstens 5 meter uit elkaar zijn.
Re: enkele vluchtroute
Naam: Joost (datum: 13-10-2014 17:51)
je kan ook nog een (brandwerende en zelfsluitende) deur maken in de wand evenwijdig aan AsB14...
Naam: Joost (datum: 13-10-2014 17:51)
je kan ook nog een (brandwerende en zelfsluitende) deur maken in de wand evenwijdig aan AsB14...
Re: enkele vluchtroute
Naam: Marc Wichards (datum: 14-10-2014 09:19)
Beste Joost, Bedankt.
BC 02 en 03 worden apart verhuurt, dus hier een deur plaatsen geeft weer andere problemen en is dus niet gewenst.
BC 02 heeft wel een 2e vluchtroute maar ik denk toch met 1 uitgang bij BC 03 niet toereikend te zijn,
iemand anders nog idee?
gr.
Marc
Naam: Marc Wichards (datum: 14-10-2014 09:19)
Beste Joost, Bedankt.
BC 02 en 03 worden apart verhuurt, dus hier een deur plaatsen geeft weer andere problemen en is dus niet gewenst.
BC 02 heeft wel een 2e vluchtroute maar ik denk toch met 1 uitgang bij BC 03 niet toereikend te zijn,
iemand anders nog idee?
gr.
Marc
Re: enkele vluchtroute
Naam: J. Bolte (datum: 14-10-2014 18:06)
Let je er wel op dat het gaat om de 'gecorrigeerde loopafstand'? Wanneer je looplijn door een gebruiksgebied gaat (en dat is hier over de gehele lengte het geval) moet je die 60 mtr. dus met een factor 1,5 verkleinen, en kun je hemelsbreed maar 45 meter vluchten.
Naam: J. Bolte (datum: 14-10-2014 18:06)
Let je er wel op dat het gaat om de 'gecorrigeerde loopafstand'? Wanneer je looplijn door een gebruiksgebied gaat (en dat is hier over de gehele lengte het geval) moet je die 60 mtr. dus met een factor 1,5 verkleinen, en kun je hemelsbreed maar 45 meter vluchten.
Re: enkele vluchtroute
Naam: Roy (datum: 16-10-2014 18:54)
Indien het een niet nader in te delen gebruiksgebied betreft, mag je toch met de werkelijke loopafstand tellen?
Reageer
Naam: Roy (datum: 16-10-2014 18:54)
Indien het een niet nader in te delen gebruiksgebied betreft, mag je toch met de werkelijke loopafstand tellen?




![[ S&W Consultancy ]](topics//logo.gif)
![[ Emma Interieuradvies]](topics/index/emma.png)