Zoek binnen het forum
Vraag: Verblijfsruimte en plaatsing projectievlak
Naam: Sjoerd (datum: 06-07-2012 16:09)
Goedenmiddag,
ik ben een startend BB-deskundige en loop tegen de volgende zaken aan, ik hoop dat de ervaren adviseurs mij kunnen helpen.
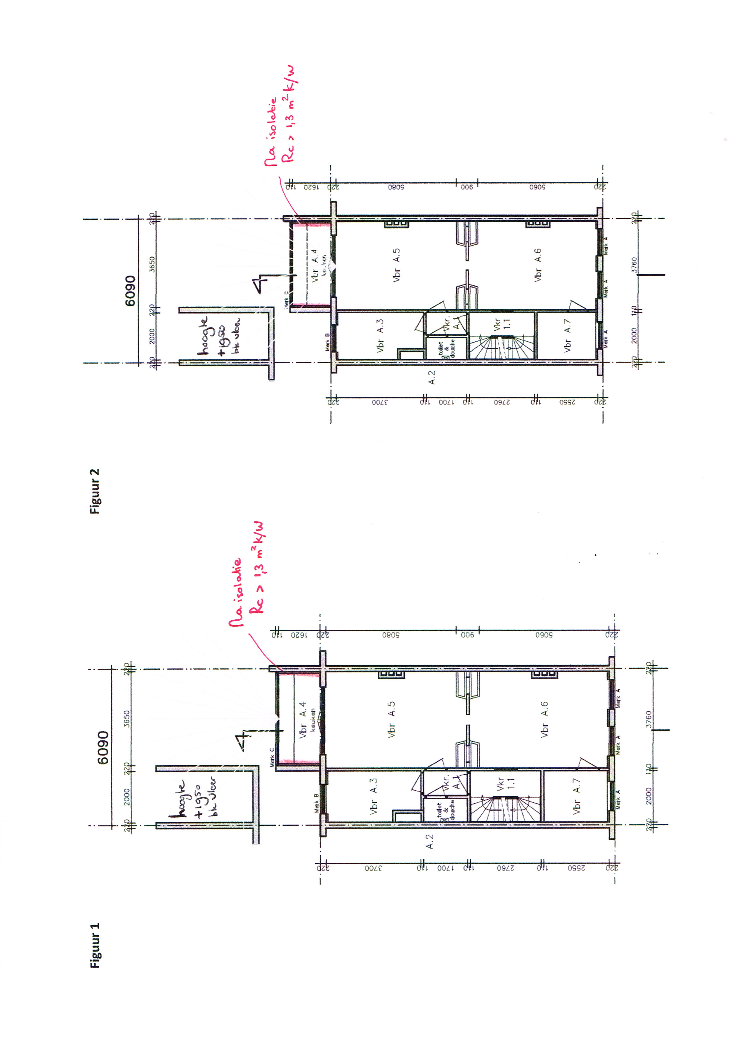
Betreft een bestaand pand, opgesplitst in vier kamers. Opdrachtgever wil vergunning voor appartementen dus BB-berekeningen moeten worden opgesteld. Vraag 1: Is het correct dat de keuken (A.4) na naisolatie (>1,3) beschouwt kan worden als verblijfsruimte, ondanks de breedte van 1,60m1?
Vraag 2: Bij het berekenen van het daglichtoppervlakte, dat uitgangspunt a-zone aan binenzijde Vbr. 4 ligt (figuur 1). De A-zone moet worden toegepast i.v.m. tegenoverliggende belemmering.
Ik hoor het graag.
ps. in de bijlage nog geen brandveiligheid e.d. aangegeven
Bijlage: Projectievlak en verblijfsruimte keuken.jpg Reageer
Naam: Sjoerd (datum: 06-07-2012 16:09)
Goedenmiddag,
ik ben een startend BB-deskundige en loop tegen de volgende zaken aan, ik hoop dat de ervaren adviseurs mij kunnen helpen.
Betreft een bestaand pand, opgesplitst in vier kamers. Opdrachtgever wil vergunning voor appartementen dus BB-berekeningen moeten worden opgesteld. Vraag 1: Is het correct dat de keuken (A.4) na naisolatie (>1,3) beschouwt kan worden als verblijfsruimte, ondanks de breedte van 1,60m1?
Vraag 2: Bij het berekenen van het daglichtoppervlakte, dat uitgangspunt a-zone aan binenzijde Vbr. 4 ligt (figuur 1). De A-zone moet worden toegepast i.v.m. tegenoverliggende belemmering.
Ik hoor het graag.
ps. in de bijlage nog geen brandveiligheid e.d. aangegeven
Bijlage: Projectievlak en verblijfsruimte keuken.jpg Reageer
Re: Verblijfsruimte en plaatsing projectievlak
Naam: Jeroen (datum: 06-07-2012 17:11)
Zonodig cursus volgen of gewoon zelf interpreteren en indienen bij de gemeente.
Als het wordt gecontroleerd en ze beschouwen het als niet correct dan verneem je dat van zelf.
Als je met een redelijk bouwplan komt dan wordt het echt wel opgelost.
Naam: Jeroen (datum: 06-07-2012 17:11)
Zonodig cursus volgen of gewoon zelf interpreteren en indienen bij de gemeente.
Als het wordt gecontroleerd en ze beschouwen het als niet correct dan verneem je dat van zelf.
Als je met een redelijk bouwplan komt dan wordt het echt wel opgelost.
Re: Verblijfsruimte en plaatsing projectievlak
Naam: johan (datum: 06-07-2012 18:13)
En denk je dan dat de gemeente een oplossing aandraagt? Kom op zeg. Dat zou makkelijk zijn. Ik begin een buro, maak flinke facturen, en ach als het niet goed is draagt de gemeente wel een oplossing aan!
Naam: johan (datum: 06-07-2012 18:13)
En denk je dan dat de gemeente een oplossing aandraagt? Kom op zeg. Dat zou makkelijk zijn. Ik begin een buro, maak flinke facturen, en ach als het niet goed is draagt de gemeente wel een oplossing aan!
Re: Verblijfsruimte en plaatsing projectievlak
Naam: Bart de Jong (datum: 06-07-2012 20:50)
Hallo Johan,
zou wel makkelijke zijn inderdaad. De werkelijkheid is overigens ook dat dat gebeurd. Er zijn genoeg tekenaars die een vergunning aanvragen met het minimale informatie op papier, omdat ze weten dat een gemeente toch aanvullende bescheiden vraagt met een mooi lijstje wat er nog allemaal aangeleverd moet worden.
Vervolgens even tegen de opdrachtgever zeggen dat de gemeente weer eens moeilijk doet maar dat ze het wel zullen regelen en voila. Minimale inspanning met uiteindelijk toch wel een vergunning
Naam: Bart de Jong (datum: 06-07-2012 20:50)
Hallo Johan,
zou wel makkelijke zijn inderdaad. De werkelijkheid is overigens ook dat dat gebeurd. Er zijn genoeg tekenaars die een vergunning aanvragen met het minimale informatie op papier, omdat ze weten dat een gemeente toch aanvullende bescheiden vraagt met een mooi lijstje wat er nog allemaal aangeleverd moet worden.
Vervolgens even tegen de opdrachtgever zeggen dat de gemeente weer eens moeilijk doet maar dat ze het wel zullen regelen en voila. Minimale inspanning met uiteindelijk toch wel een vergunning
Re: Verblijfsruimte en plaatsing projectievlak
Naam: J. Bolte , van Yacht (datum: 06-07-2012 23:50)
een belangrijke term die je hiervoor moet gaan nazoeken en begrijpen is 'verbouwniveau'. Wanneer je binnen een bestaand pand gaat verbouwen zijn de regels anders dan voor nieuwbouw.
Naam: J. Bolte , van Yacht (datum: 06-07-2012 23:50)
een belangrijke term die je hiervoor moet gaan nazoeken en begrijpen is 'verbouwniveau'. Wanneer je binnen een bestaand pand gaat verbouwen zijn de regels anders dan voor nieuwbouw.
Re: Verblijfsruimte en plaatsing projectievlak
Naam: Sjoerd (datum: 13-07-2012 14:59)
Dank voor de reactie Bolte.
De verbouwregelgeving is aanzienlijk verschillend van nieuwbouw. Echter dien ik voor het splitsen van woningen toch per appartement aan te tonen dat het voldoet qua daglichteisen en ventilatie?
Reageer
Naam: Sjoerd (datum: 13-07-2012 14:59)
Dank voor de reactie Bolte.
De verbouwregelgeving is aanzienlijk verschillend van nieuwbouw. Echter dien ik voor het splitsen van woningen toch per appartement aan te tonen dat het voldoet qua daglichteisen en ventilatie?




![[ S&W Consultancy ]](topics//logo.gif)
![[ Emma Interieuradvies]](topics/index/emma.png)